房产简介
项目介绍
随着大阪成功申办2025年世博会,并计划于2030年开放综合度假村(包括赌场),大阪的旅游业正迎来前所未有的增长机遇。据预测,赌场度假村将吸引全球游客,大幅提升酒店和民宿需求。在此背景下,投资位于大阪核心地段的民宿房产,成为明智之选。本笔记将重点介绍 YUKIMI BOUTIQUE HOMESTAY 项目,结合大阪旅游业优势,突显民宿市场的火热现状。

大阪一户建民宿民泊——雪见
地址:大阪市西成区梅南2丁目3-13、3-14
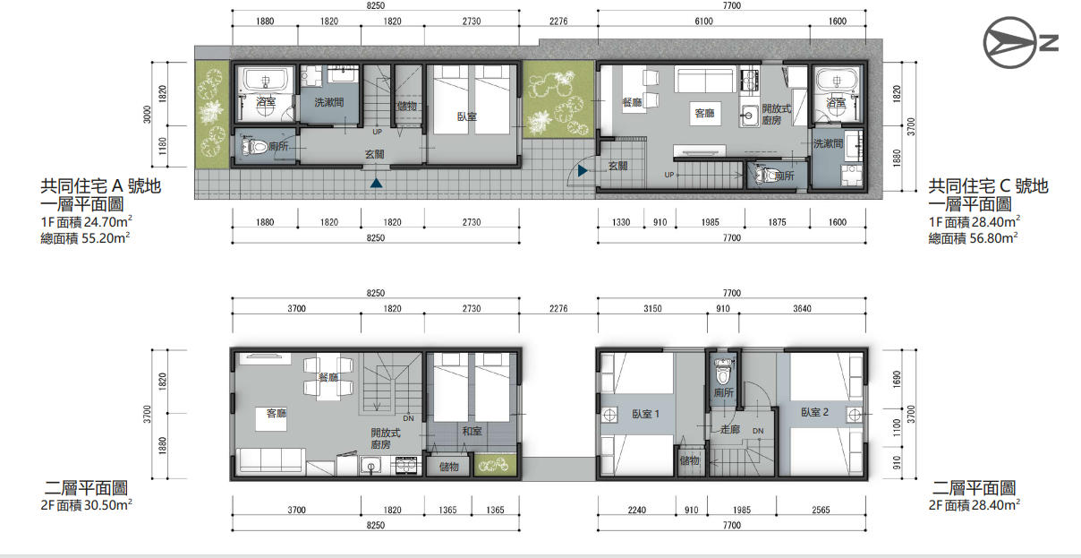
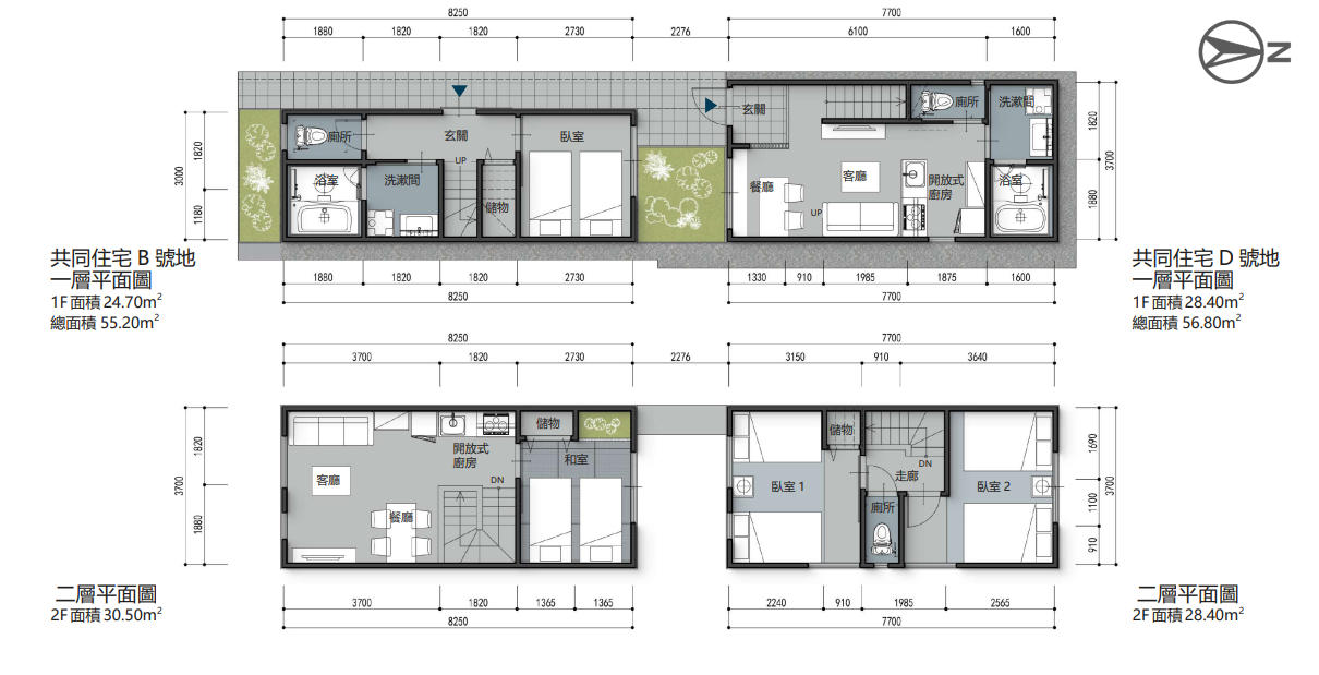
总面积:264.1㎡,独栋A/B号地:各37.57㎡,共同住宅A-D号地:面积44.86-46.08㎡
项目位置及周边


效果图
.jpg)
户型图
独栋A号

独栋B号

共同住宅A、C号

共同住宅B、D号

更多内容欢迎添加“加凯小助手”微信
jiakaiyimin
*扫描下方二维码,或添加上方微信号



